Aperol Apartment
2007
Residential
Dbayeh, Lebanon
200 sqm
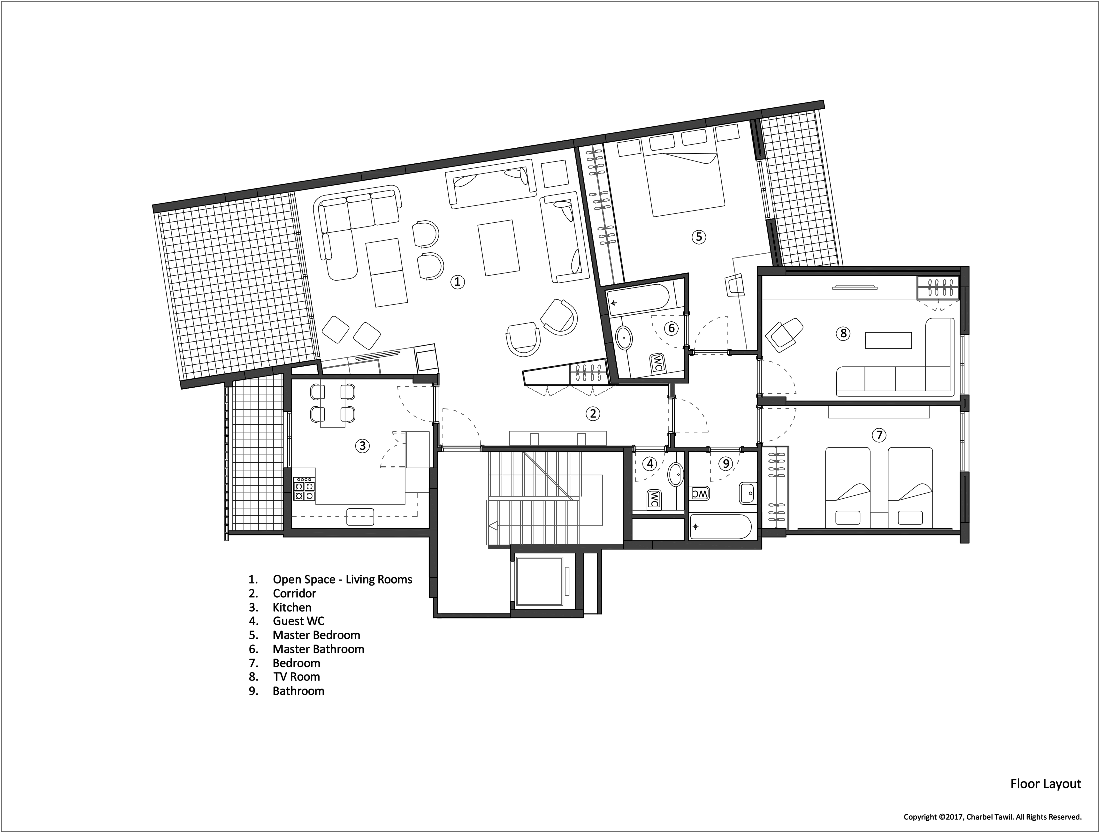
An apartment for a young couple. The architecture of its plan includes an oblique form, which was the main line for structuring the circulation and the separations that helped in creating interesting volumes. The finishes in this 200sqm apartment is comprised of natural stones for the floor and some walls and a mix of dark and light wood cladding. These materials provided contrast to the space while remaining calm and warm at the same time.






